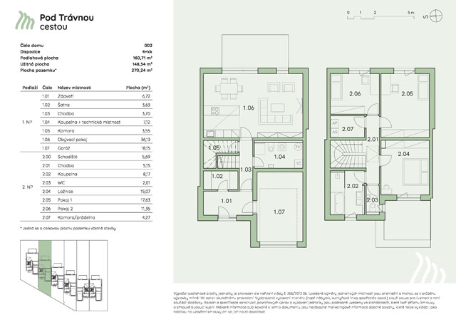
Řadový dům 2
| Dům | Dispozice | Podlahová plocha | Terasa | Zahrada | Předzahrádka | Zpevněné plochy | Stav | Cena | |
|---|---|---|---|---|---|---|---|---|---|
| 2 | 4+kk | 160,72 m2 | 12,5 m2 | 99,62 m2 | 32,81 m2 | 35,66 m2 | volný | 10 790 000 Kč | Rezervace |
Karta řadového domu
Soubor PDF s půdorysem a podrobnými informacemi o řadovém domu.
